Цивільне будівництво
GreenTec спеціалізується на BIM-проектуванні та будівництві енергоефективних котеджних селищ. Ми використовуємо передові технології для створення модульних будинків, які збираються на заводі та монтуються на ділянці, забезпечуючи швидке та якісне будівництво.
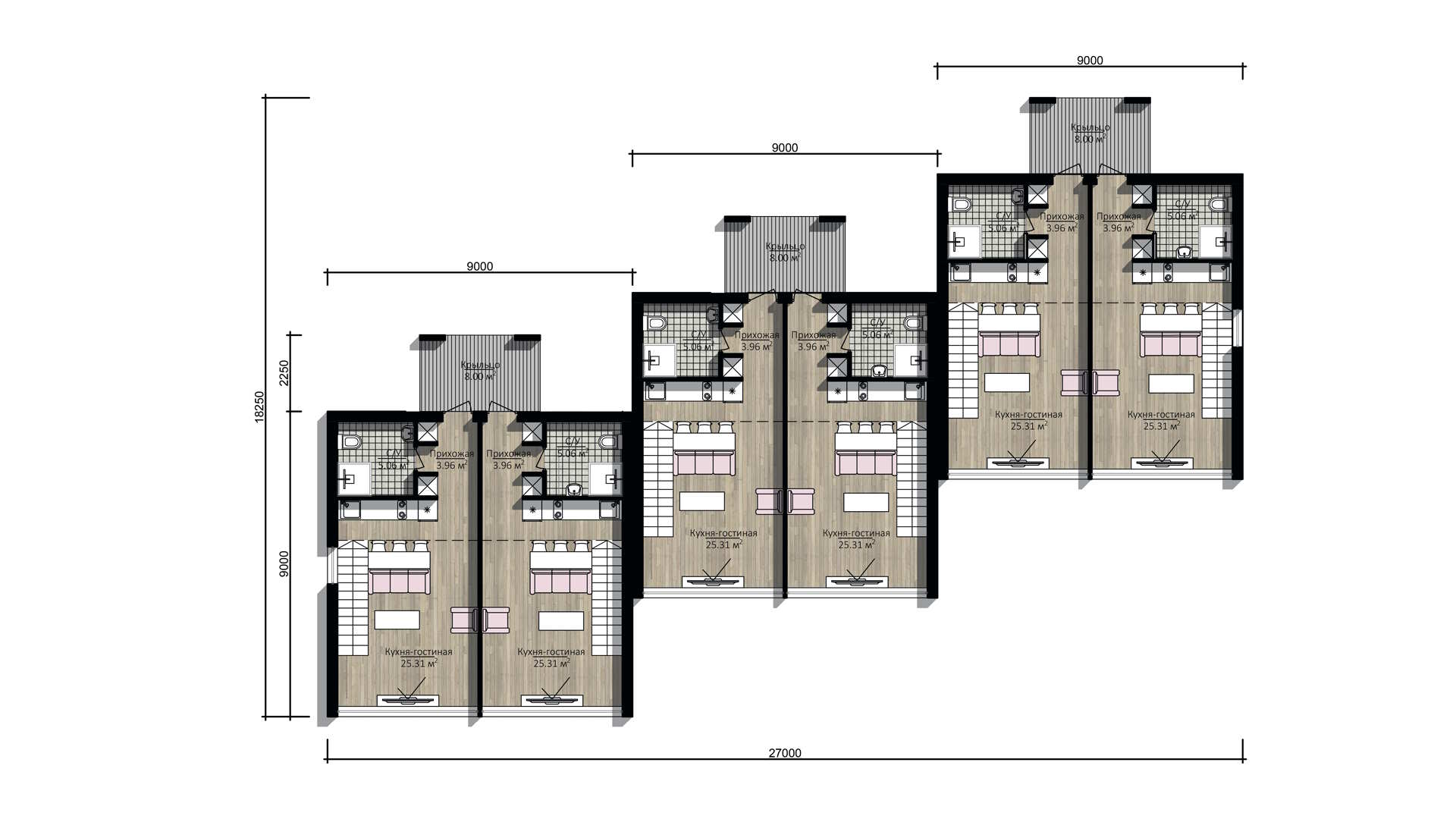
Проекти будинків
Наші ключові послуги включають:
GreenTec – ваш надійний партнер у будівництві котеджних селищ, де кожен проект реалізується з урахуванням індивідуальних потреб клієнтів, забезпечуючи унікальність, комфорт та стійкість майбутнього житла.
Чому саме варто обрати GreenTec?
Інновації та Традиції
Ми поєднуємо стародавні традиції будівництва з передовими технологіями, створюючи унікальні та ефективні будинки.
BIM Технології
Ми використовуємо передові BIM технології для точних та деталізованих проектів, що відповідають найвищим стандартам якості.
Індивідуальний Підхід
Ми слухаємо ваші потреби та бажання, створюючи унікальні та особисті проекти для кожного клієнта.
Енергоефективність
Ми спеціалізуємося на створенні енергоефективних будинків, що допомагають зменшити витрати на опалення та охолодження.



